全程綜合水處理器
分享到:
長沙潤洲環(huán)保設備有限公司是一家水處理設備的生產制造和污水、廢水處理設計及設備制造于一體的專業(yè)化環(huán)保企業(yè)。電話:0731-89908858
- 全國咨詢熱線:
- 18974988658
詳情介紹:

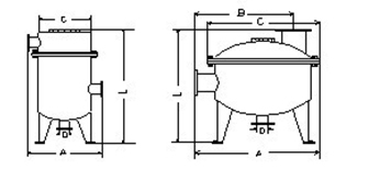
| 型 號 | 輸水管徑(mm) | 處理流量 | 結構形式 | 設 備 外 形 尺 寸 | 凈重 | 功率 | ||||
| T/H | A | L | C | D | B | (kg) | (W) | |||
| RZS-50B1.0QD/B-□ | 50 | 10月18日 | B | 560 | 1100 | 300 | 25 |
|
130 | 150 |
| RZS-80B1.0QD/B-□ | 80 | 18-45 | B | 560 | 1130 | 300 | 25 |
|
150 | 160 |
| RZS-100B1.0QD/B-□ | 100 | 45-70 | B | 685 | 1330 | 400 | 40 |
|
190 | 200 |
| RZS-150B1.0QD/B-□ | 150 | 70-158 | B | 785 | 1435 | 500 | 40 |
|
270 | 210 |
| RZS-200B1.0QD/D-□ | 200 | 158-280 | D | 810 | 1200 | 600 | 50 | 620 | 400 | 220 |
| RZS-250B1.0QD/D-□ | 250 | 280-440 | D | 810 | 1300 | 600 | 50 | 600 | 450 | 230 |
| RZS-300B1.0QD/D-□ | 300 | 440-640 | D | 1045 | 1600 | 800 | 80 | 780 | 500 | 250 |
| RZS-350B1.0QD/D-□ | 350 | 640-865 | D | 1050 | 1700 | 800 | 80 | 760 | 650 | 260 |
| RZS-400B1.0QD/D-□ | 400 | 865-1130 | D | 1280 | 1900 | 1000 | 100 | 940 | 800 | 300 |
| RZS-450B1.0QD/D-□ | 450 | 1130-1430 | D | 1305 | 2000 | 1000 | 100 | 950 | 850 | 350 |
| RZS-500B1.0QD/D-□ | 500 | 1430-1800 | D | 1515 | 2100 | 1200 | 100 | 1090 | 1000 | 400 |
| RZS-600B1.0QD/D-□ | 600 | 1800-2600 | D | 1570 | 2300 | 1200 | 150 | 1125 | 1500 | 500 |
| RZS-700B1.0QD/D-□ | 700 | 2600-4800 | D | 1735 | 2400 | 1400 | 150 | 1300 | 2350 | 600 |












